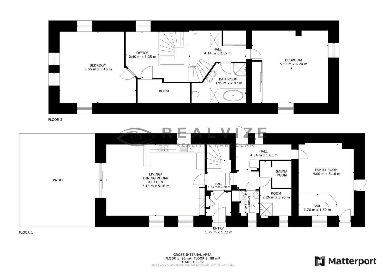
Nabízíme k prodeji samostatně stojící rodinný dům po rekonstrukci, který se nachází v klidné lokalitě Koroseky-Vrábče u Českých Budějovic. Dům má užitnou plochu 180 m2, stojí na pozemku o velikosti 207 m2 a je ideální pro rodinu, která hledá pohodlí, klid a minimum starostí s údržbou.
V domě najdete 4 pokoje, 2 koupelny a garáž pro jedno auto. Dům je rozložen do dvou podlaží, což umožňuje praktické a pohodlné využití prostoru.
Vytápění zajišťuje podlahové topení, topení na tuhá paliva s výměníkem, tepelné čerpadlo a fotovoltaika – to vše výrazně snižuje náklady na provoz.
Napojení na obecní vodovod, odpad řešen čtyřkomorovým septikem.
Dům se nachází ve velmi klidné lokalitě obklopené přírodou, ideální pro ty, kteří chtějí klidné bydlení bez nutnosti starat se o velký pozemek – zahrada je přesně tak akorát.
Skvělá volba pro rodinu, která hledá harmonické a udržitelné bydlení mimo městský ruch.
Více informací na vyžádání u makléře. Budeme se těšit na prohlídce.



















